为了建立反应迅速、协调有力、科学规范的学院突发事件应急处置体系,最大程度控制、消除突发事件给我院师生人身安全、财产带来的危害,规范和指导学院突发事件的应急处置工作,维护学院的安全稳定,依据上级相关法律法规和校内规章制度,结合我院实际情况,制定本预案。
第一部分总则
本预案适用于本学院室内火灾、实验室事故、群体事件、非正常死亡、恐怖袭击等各种不可预见性突发事件。
学院成立突发事件应急指挥机构:
总 指 挥:学院分党委书记、院长
副总指挥:党政办主任
成 员:副书记、副院长(院长助理)、系主任、实验室负责人、校级微纳中心副主任、辅导员等。
应急指挥机构下设通讯联络组、现场处置组和善后处理组,各组组长及成员由总指挥根据突发事件的实际情况临时指定。通讯联络组负责事件信息的及时报告和报送工作,并及时向学院传达学校的指导意见。现场处置组和善后处理组应根据各突发事件的处置程序和善后程序开展相关工作(见以下每项预案)。
第二部分火灾事故应急处置预案
一、关键点:懂得如何报警,懂得选择和使用合适的灭火设施,懂得如何从所在楼宇疏散逃生
二、报警程序
任何人员发现本学院辖区发生火情应第一时间向校报警中心(82317119)报警,报警时要沉着冷静,应讲清楚以下内容:
(一)失火的准确地理位置;
(二)尽可能提供失火现场的基本情况,如起火时间、燃烧特征、火势大小、有无被困人员、有无重要物品等等(如涉及危化品燃烧,应尽可能告知危化品种类、数量及危险性);
(三)报警人的姓名、工作单位、电话。
三、处置程序
报警同时,着火部位附近人员应根据火势大小和现场情况,判定火情如果较小且可控,在确保自身安全的前提下,立即启动初期火灾处置程序,具体任务要求是:
(一)大声呼救附近人员参与灭火救援,附近安装有火灾报警按钮的,立即摁下按钮通知消防控制室(最近的微型消防站);
(二)尽可能找到控制起火部位电气的配电箱,切断着火部位的电源;
(三)根据着火部位仪器设备及危险化学品等特性,使用二氧化碳或干粉等相适应的灭火器扑救初起火灾(在电源被切断之前,不宜使用消防栓进行灭火);
1.可燃液体着火:立即拿开着火区域内的一切可燃物质,关闭通风设施,防止扩大燃烧。若着火面积较小,可用抹布、湿布、铁片或沙土覆盖,隔绝空气使之熄灭。覆盖时动作要轻,避免碰坏或打翻盛装可燃溶剂的玻璃器皿,导致更多的溶剂流出而扩大着火面。
2.酒精及他可溶于水的液体着火:可用水灭火。
3.汽油、乙醚、甲苯等有机溶剂着火:应用石棉布或砂土扑灭。绝对不能用水,否则会扩大燃烧面积。
4.金属钠着火:用砂土覆盖灭火。
5.导线和电器外壳着火:不能用水及泡沫灭火器,应先切断电源,再用二氧化碳或干粉灭火器灭火。
6.衣服烧着时切忌奔走,可用衣服、大衣等包裹身体或躺在地上滚动灭火。
7.当发生易燃、液化气体类火灾时,首先切断电源,开门窗通风,起火初期首先控制气体泄漏,然后使用灭火毯遮盖扑灭,如无法控制气体泄漏,当容器内容物储存量低于爆炸极限时,使用干粉灭火器扑救,火焰消失后使用灭火器对周边环境降温至室温以免气体重新燃烧或爆炸,否则必须保持稳定燃烧,避免大量可燃气体泄漏出来与空气混合后发生爆炸。
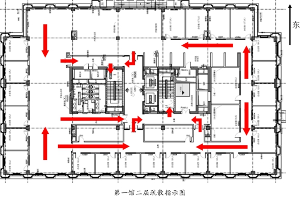
(四)如火势蔓延较快,已无法自行扑灭或无法确保自身安全时,应迅速大声示警,帮助和引导着火部位周围及楼内人员紧急疏散至安全地带(如附图所示);
(五)协助需要医疗救助的人员拨打急救中心电话(999或120);
(六)及时向学院分党委书记、院长报告相关情况,学院分党委书记或院长第一时间向学校主管校领导及校应急处置工作领导小组办公室报告。
四、善后程序
(一)学院分党委书记、院长接到报告后,应立即赶赴现场,组织学院相关人员保护现场,配合学校安全保卫处和公安消防部门对火灾起因进行调查,并对受伤人员和受损情况进行统计;
(二)事故现场警戒区域必须待事故调查和排险抢修工作完毕,现场已无事故隐患后方可解除;
(三)联系受伤人员家属,并对受伤人员进行安抚和慰问;
(四)对事故责任人进行教育和追责,总结经验教训举一反三,提出有效预防措施,防止类似事故发生;
(五)尽快恢复正常的教学、科研和工作秩序。
第三部分实验室安全事故应急处置预案
一、关键点:懂得实验室的危险源及风险点,懂得如何报警,懂得有针对性的处置
二、报警程序
任何人员发现本学院实验室发生安全事故应第一时间向校报警中心(82317119)报警,报警时要沉着冷静,应讲清楚以下内容:
(一)发生事故的准确地理位置;
(二)尽可能提供事故现场的基本情况和有无受伤被困人员等;
(三)报警人的姓名、工作单位、电话。
三、处置程序
(一)实验室火灾事故
参照第三条火灾事故应急处置预案的处置程序。
(二)实验室触电事故
1.发现触电事故的任何人员在确认自身安全的前提下,应在第一时间抢救触电者,并让在场人员帮助拨打急救中心电话(999或120)以及向校报警中心(82317119)报警;
2.抢救触电者时,应注意先切断电源,若一时无法切断电源,可用干燥的木棒、木板、绝缘绳等绝缘材料解脱触电者或用绝缘工具切断带电导线,同时要预防触电者解脱后摔倒受伤(另外,以上办法仅适用于220/330V“低压”触电的抢救;对于高压触电应及时通知供电部门,采用相应的紧急措施,以免发生新的事故);
3.医务人员到达前,若触电者神智清醒,让其就地休息;若触电者呼吸、心跳尚存、神智不清,应仰卧,周围保持空气流通,注意保暖;若触电者呼吸停止,则用口对口进行人工呼吸;若触电者心脏停止跳动,用人工胸外心脏挤压维持血液循环;若呼吸、心脏全停,则上述两种方法同时进行(现场抢救不能轻易中止,要坚持到医务人员到场后接替抢救);
4.安排人员在现场设置警戒区域,维护抢救现场的正常秩序,引导医务人员快速进入事故现场对触电者进行施救;
5.及时向学院分党委书记、院长报告相关情况,学院分党委书记或院长第一时间向学校主管校领导及校应急处置工作领导小组办公室报告。
(三)实验室惰性气体泄漏
1.发现实验室内惰性气体泄露时应立即停止所有实验,疏散室内所有人员,安排人员在实验室外围设置警戒区域,不允许无关人员靠近;
2.无法确定泄露源的情况下,如惰性气体容器(气瓶等)处于室外,应立即前往关闭容器阀门;如惰性气体容器(气瓶等)处于室内,为保证人员安全,应佩戴空气呼吸器后再进入实验室内对容器阀门进行操作,并将容器转移至室外;
3.对实验室采取加大通风措施通风换气,风机吸入管应设在实验室底部,彻底排除惰性气体;
4.如已有人员发生窒息晕倒,应立即拨打急救中心电话(999或120),救援人员应佩戴空气呼吸器后再进入室内进行救援,将受伤人员转移至通风处进行人工呼吸抢救;
5.及时向学院分党委书记、院长报告相关情况,学院分党委书记或院长第一时间向学校主管校领导及校应急处置工作领导小组办公室报告。
(四)实验室化学品泄漏
1.发现实验室内有易燃、腐蚀、有毒液体泄漏,现场人员首先从室外总闸切断电源(避免断电时电弧引起火灾),佩戴个人防护用具,避免中毒和受到灼伤,然后使用相应物资擦拭和吸收(大量泄漏时在实验室门口设置堵截围堰后撤离,等待应急救援人员处置);
2.立即停止所有实验,疏散室内所有人员,安排人员在实验室外围设置警戒区域,不允许无关人员靠近;
3.如有人员受伤,应立即拨打急救中心电话(999或120)(医务人员到达前,置神志不清的伤员于侧位,防止气道梗阻,呼吸困难时给予氧气吸入;呼吸停止时立即进行人工呼吸;心脏停止者立即进行人工胸外心脏挤压;皮肤污染时,脱去污染的衣服,用流动清水冲洗;头面部灼伤时,要注意眼、耳、鼻、口腔的清洗;眼睛污染时,立即提起眼脸,用大量流动清水彻底冲洗至少15分钟;发生冻伤时,应迅速采用40℃~42℃恒温热水浸泡,使其在15~30分钟内温度提高至接近正常,在对冻伤的部位进行轻柔按摩时,应注意不要将伤处的皮肤擦破,以防感染;发生烧伤时,应迅速将伤者衣服脱去,用水冲洗降温,用清洁布覆盖创伤面,避免伤面污染,不要任意把水疱弄破);
4.及时向学院分党委书记、院长报告相关情况,学院分党委书记或院长第一时间向学校主管校领导及校应急处置工作领导小组办公室报告。
四、善后程序
(一)学院分党委书记、院长接到报告后,应立即赶赴现场,组织学院相关人员保护现场,配合学校安全保卫处和安监部门对事故起因进行调查,并对受伤人员和受损情况进行统计;
(二)事故现场警戒区域必须待事故调查和排险抢修工作完毕,现场已无事故隐患后方可解除;
(三)联系受伤人员家属,并对受伤人员进行安抚和慰问;
(四)对事故责任人进行教育和追责,总结经验教训举一反三,提出有效预防措施,防止类似事故发生;
(五)尽快恢复正常的教学、科研和工作秩序。
第四部分群体事件应急处置预案
一、关键点:及时了解师生动态,做好思想教育工作
二、处置程序
(一)学院分党委书记、院长了解到我院有师生参与上访、非法集会、游行示威、占据重要活动场所等情况时,应在第一时间向学校安全保卫处、学校主管校领导及校应急处置工作领导小组办公室报告。
(二)组织学院相关人员迅速赶赴现场,稳定师生情绪,采取安抚、劝说、警告等方式,配合有关部门尽力将参与师生劝离现场,注意有序疏散,防止拥挤踩踏;
(三)协助需要医疗救助的人员拨打急救中心电话(999或120),对受伤人员积极进行抢救;
(四)安排专人分别对参与上述事件的师生进行谈心谈话,了解情况和起因,做好说服教育工作,劝阻参与师生将信息散布到网络上(含微博、微信),明确告知不能接受任何采访,避免被误导利用。
三、善后程序
(一)密切关心关注参与师生的日常思想状况和行为动态,定期开展谈心谈话,必要时联系家属一起开展思想工作;
(二)及时总结事件的经验、教训,反思事件发生的原因和根源,提出有效预防措施,防止类似事件发生;
(三)尽快恢复正常的教学、科研和工作秩序。
第五部分非正常死亡突发事件应急处置预案
一、关键点:防止谣言滋生蔓延,做好家属安抚工作
二、报警程序
任何人员发现我院师生非正常死亡(或受伤严重但未能确认死亡),应立即向校报警中心(82317110)和急救中心电话(999或120)报警,报警时要沉着冷静,应讲清楚以下内容:
(一)发生事件的准确地理位置;
(二)报警人的姓名、工作单位、电话。
三、处置程序
(一)报警人应及时向学院分党委书记、院长报告相关情况;
(二)学院分党委书记、院长接到报告后,应立即赶赴现场,向学校主管校领导及校应急处置工作领导小组办公室报告,安排专人通知死(伤)者家属赶赴现场;
(三)事件如发生在校内,应立即配合学校安全保卫处和公安机关封锁现场,劝离围观人员,制止无关人员拍照或录像,联系当事人或目击证人进行调查取证,尽快查明事件原因(事件如发生在校外,应与学校安全保卫处联合派遣工作组前往现场了解情况,配合当地公安机关开展相应工作)。
四、善后程序
(一)学院分党委书记、院长应组织学院相关人员稳定师生情绪,劝阻师生将信息散布到网络上(含微博、微信),明确告知师生不接受任何采访,避免滋生谣言和出现恐慌情绪;
(二)对外信息披露统一由学校宣传部门进行,学院不得擅自接受采访和发布任何相关信息;
(三)妥善做好家属联络、接待和安抚工作,同时配合家属整理死者的个人物品(若发生家属无理取闹等情况,安排专人进行劝说,若劝说无效,及时取证,配合学校相关部门采取法律手段,维护正常校园秩序);
(四)及时总结事件的经验、教训,反思事件发生的原因和根源,追究相关人员责任,提出有效预防措施,防止类似事件发生;
(五)尽快恢复正常的教学、科研和工作秩序。
第六部分校园暴恐事件应急处置预案
一、关键点:懂得如何报警,懂得如何避险和自救
二、报警程序
任何人员发现恐暴分子在本学院辖区内制造持刀斧砍杀、驾车冲撞、枪击、爆炸、施放毒气、胁持人质以及其他恐怖破坏活动时,应先迅速避险,确保自身安全后立即向校报警中心(82317110)和属地公安机关(110)报警,报警时要沉着冷静,应讲清楚以下内容:
(一)发生暴恐袭击的准确地理位置;
(二)尽可能提供暴恐袭击的基本情况,如袭击方式、暴恐人员数量、现场有无受伤人员等;
(三)报警人的姓名、工作单位、电话。
三、处置程序
(一)切忌驻足观望,尽快远离案发区域或进入安全区域,同时尽可能帮助周边受伤的人员一同撤离;
(二)如在袭击中受伤应尽可能使用衣物进行止血,避免失血过多;
(三)协助需要医疗救助的人员拨打急救中心电话(999或120);
(四)被围困在室内实在无法撤离的人员,应紧闭门窗,尽可能防止暴恐分子进入室内;
(五)在疏散逃生时如与暴恐分子狭路相逢,应利用任何可以用于抵抗或保护自己的工具进行抵抗及保护身体,并大声呼救;
(六)及时向学院分党委书记、院长报告相关情况。
四、善后程序
(一)学院分党委书记、院长接到报告后,应立即赶赴现场,听从学校及公安机关指挥,组织学院相关人员配合开展救援、封锁现场等相关工作;对受伤人员和受损情况进行统计,并及时向学校主管校领导及校应急处置工作领导小组办公室报告。
(二)稳定师生情绪,防止出现大范围恐慌;
(三)联系受伤人员家属,并对受伤人员进行安抚和慰问;
(四)尽快恢复正常的教学、科研和工作秩序。
第七部分网络安全事件应急处置预案
一、关键点:懂得如何以最快速度切断网站服务器与外网连接,日常做好所辖所有信息系统网络安全等级保护备案、“双非”网站清理、学院网站和微信公众号信息审核发布。
二、处置程序
(一)任何人员发现学院网站、微信公众号等上出现不良信息(或遭受网络攻击、网页篡改)等网络安全事件,应立即向校信息化办公室(82317005)报告,第一时间切断相关服务器与外网连接;
(二)及时向学院分党委书记、院长报告相关情况,学院分党委书记或院长第一时间向学校主管校领导及应急处置工作领导小组办公室报告;
(三)学院分党委书记、院长立即组织相关人员开展情况调查,对不影响学校正常业务和公共服务的网站和信息系统,可采取临时关停措施;
(四)待删除不良信息,清查学院网站、微信公众号等上的所有内容,确保没有任何不良信息后,才能重新连接网站服务器及防火墙的外网网络连接,并测试安全运行情况。
三、善后程序
(一)组织学院相关人员对外统一发布说明,向师生做好解释工作,劝阻师生扩散不良信息,减少不良影响;
(二)对学院所辖网络硬、软件设备及接入网络的计算机设备进行全面检查,及时对有安全隐患的设备及网络环境安装补丁、修改用户密码,加强防护;
(三)加强对学院网络的使用者及师生的网络安全教育;
(四)对事件责任人进行教育和追责,总结经验教训举一反三,提出有效预防措施,防止类似事件发生;
(五)尽快恢复正常的教学、科研和工作秩序。
第八部分附则和附图
第九条 本预案自发布之日起施行,由集成电路科学与工程学院“平安学院”建设工作领导小组负责解释。
附图:



